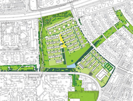
muenchen_stiftsbogen01

 

Städtebaulicher Realisierungswettbewerb “Stiftsbogen”, München, 2001, 5. Preis